Description
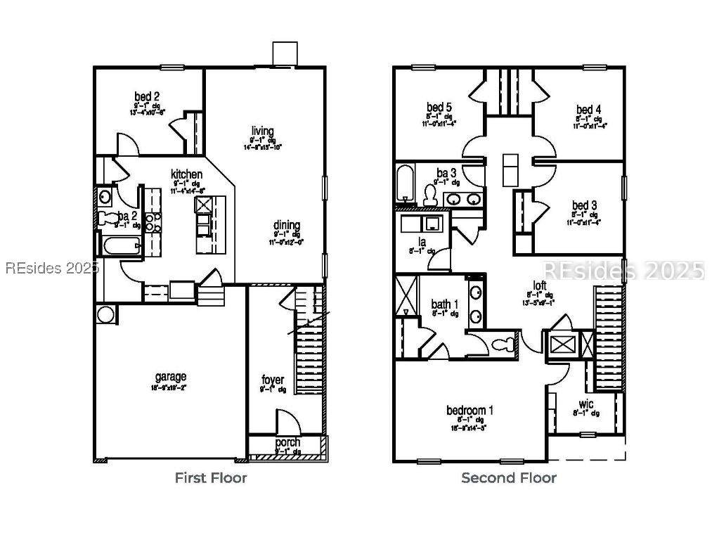
Welcome to The Groves at Bees Creek! Perfect location & value with easy commute to I-95, Savannah, Ports, Parris Island & USMC Air Station! Introducing the Robie a thoughtfully designed 5-bedroom, 3-bath home with 2,361 square feet of flexible living space and a 2-car garage, perfect for families who crave both space and functionality. Located in The Groves at Bees Creek, this plan is a fan favorite and for good reason. The first floor features a welcoming open layout anchored by a dream-worthy kitchen that's as practical as it is polished. With an abundance of cabinetry, sleek stainless-steel appliances, a large walk-in pantry, and a large island that doubles as a prep space and social hub, it's designed to keep pace with the busiest lifestyles. The adjoining dining and living areas make hosting a breeze, and the main-level bedroom and full bath provide the ideal setup for guests or a home office. Upstairs, the primary suite is a sanctuary, boasting a spacious walk-in closet, double vanity, linen closet and a large walk-in shower. A versatile loft offers extra room for work or play, while three additional bedrooms, a full hall bath, and a convenient upstairs laundry room check all the boxes for everyday ease. With Smart Home Technology, 2 faux wood blinds, and a design that adapts to your life, the Robie delivers the perfect blend of comfort, flexibility, and style. Home is under construction. Pictures, photographs, colors, features, & sizes are for illustration purposes only and will vary from the homes as built. The photos are Not of subject property. Ask how to receive up to $10,000 in Closing Costs w/ Preferred Lender!
-
5BEDS
-
0.17ACRES
-
3BATHS
-
01/2 BATHS
-
2,361SQFT
-
$163$/SQFT
School Ratings & Info
Description
Welcome to The Groves at Bees Creek! Perfect location & value with easy commute to I-95, Savannah, Ports, Parris Island & USMC Air Station! Introducing the Robie a thoughtfully designed 5-bedroom, 3-bath home with 2,361 square feet of flexible living space and a 2-car garage, perfect for families who crave both space and functionality. Located in The Groves at Bees Creek, this plan is a fan favorite and for good reason. The first floor features a welcoming open layout anchored by a dream-worthy kitchen that's as practical as it is polished. With an abundance of cabinetry, sleek stainless-steel appliances, a large walk-in pantry, and a large island that doubles as a prep space and social hub, it's designed to keep pace with the busiest lifestyles. The adjoining dining and living areas make hosting a breeze, and the main-level bedroom and full bath provide the ideal setup for guests or a home office. Upstairs, the primary suite is a sanctuary, boasting a spacious walk-in closet, double vanity, linen closet and a large walk-in shower. A versatile loft offers extra room for work or play, while three additional bedrooms, a full hall bath, and a convenient upstairs laundry room check all the boxes for everyday ease. With Smart Home Technology, 2 faux wood blinds, and a design that adapts to your life, the Robie delivers the perfect blend of comfort, flexibility, and style. Home is under construction. Pictures, photographs, colors, features, & sizes are for illustration purposes only and will vary from the homes as built. The photos are Not of subject property. Ask how to receive up to $10,000 in Closing Costs w/ Preferred Lender!
Related Properties
We do not attempt to independently verify the currency, completeness, accuracy or authenticity of the data contained herein. All area measurements and calculations are approximate and should be independently verified. Data may be subject to transcription and transmission errors. Accordingly, the data is provided on an “as is” “as available” basis only and may not reflect all real estate activity in the market”. © 2025 REsides, Inc. All rights reserved. Certain information contained herein is derived from information, which is the licensed property of, and copyrighted by, REsides, Inc. Data last updated 2025-11-13T00:00:53.853.